arctan.gr
+(30) 697 727 3636

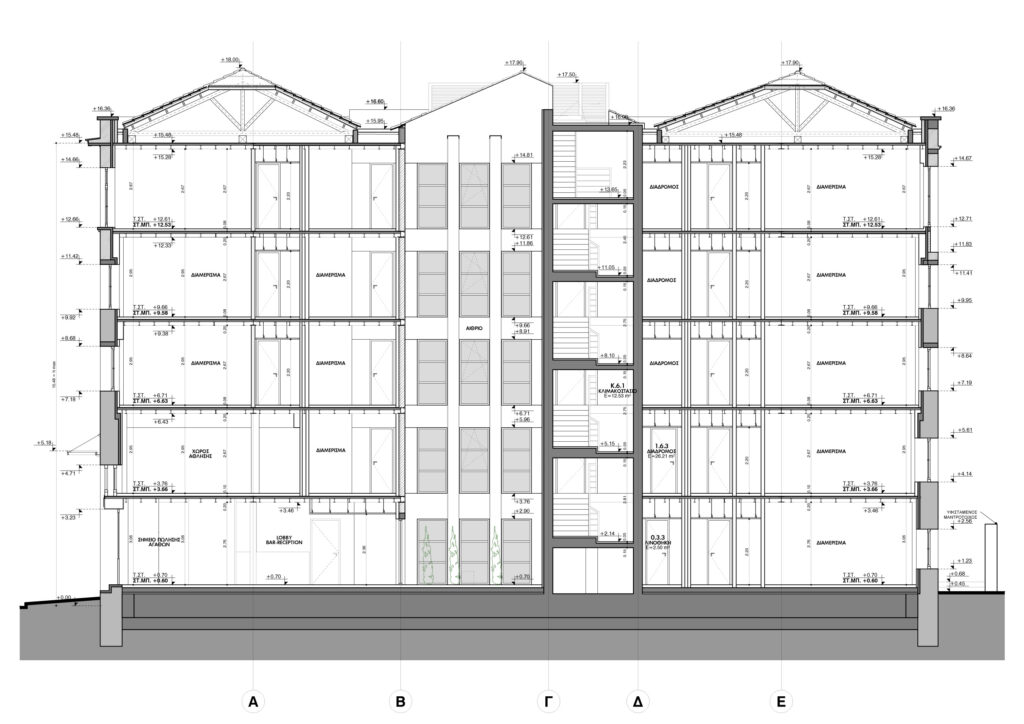
ΞΕΝΟΔΟΧΕΙΟ ΚΑΡΟΛΟΥ

Μελέτη αποκατάστασης πενταώροφου κτιρίου
και αλλαγή χρήσης από καπναποθήκες
σε ξενοδοχείο 3 αστέρων επί της οδού Καρόλου στην Πάτρα